| Product Code | Pipe Type | ΦA(mm) | ΦB(mm) | A(mm) | B(mm) |
|---|---|---|---|---|---|
| WD-E-15A | 15A | 21.34 | 15.80 | 60 | 38 |
| WD-E-20A | 20A | 26.67 | 20.93 | 60 | 38 |
| WD-E-25A | 25A | 33.4 | 26.64 | 62 | 38 |
| WD-E-40A | 40A | 48.26 | 40.86 | 74.5 | 38 |
| WD-E-50A | 50A | 60.33 | 52.5 | 83 | 38 |
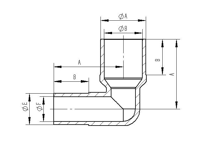
| Product Code | Pipe Type | ΦA(mm) | ΦB(mm) | ΦE(mm) | ΦF(mm) | A(mm) | B(mm) | C(mm) |
|---|---|---|---|---|---|---|---|---|
| WD-RU-20A15A | 20A-15A | 26.67 | 20.93 | 21.34 | 15.8 | 90 | 35 | 35 |
| WD-RU-25A15A | 25A-15A | 33.4 | 26.64 | 21.34 | 15.8 | 90 | 35 | 35 |
| WD-RU-25A20A | 25A-20A | 33.4 | 26.64 | 26.67 | 20.93 | 90 | 35 | 35 |
| WD-RU-40A15A | 40A-15A | 48.26 | 40.86 | 21.34 | 15.8 | 102 | 35 | 35 |
| WD-RU-40A20A | 40A-20A | 48.26 | 40.86 | 26.67 | 20.93 | 102 | 35 | 35 |
| WD-RU-40A25A | 40A-25A | 48.26 | 40.86 | 33.4 | 26.64 | 102 | 35 | 35 |
| WD-RU-50A15A | 50A-15A | 60.33 | 52.5 | 21.34 | 15.8 | 111 | 35 | 35 |
| WD-RU-50A20A | 50A-20A | 60.33 | 52.5 | 26.67 | 20.93 | 111 | 35 | 35 |
| WD-RU-50A25A | 50A-25A | 60.33 | 52.5 | 33.4 | 26.64 | 111 | 35 | 35 |
| WD-RU-50A40A | 50A-40A | 60.33 | 52.5 | 48.26 | 40.26 | 111 | 35 | 35 |
| WD-RU-15A8T | 15A-1/2" | 21.34 | 15.8 | 12.7 | 9.53 | 85 | 35 | 25 |
| WD-RU-20A12T | 20A-3/4" | 26.67 | 20.93 | 19.05 | 15.8 | 90 | 35 | 29.5 |
| WD-RU-25A16T | 25A-1" | 33.4 | 26.64 | 25.4 | 22.23 | 92 | 35 | 37.3 |
| WD-RU-40A16T | 40A-1" | 48.26 | 40.86 | 25.4 | 22.23 | 104 | 35 | 46.65 |
| WD-RU-40A20T | 40A-(1-1/4") | 48.26 | 40.86 | 31.75 | 27.7 | 104 | 35 | 41.01 |
| WD-RU-40A24T | 40A-(1-1/2") | 48.26 | 40.86 | 38.1 | 33.7 | 94 | 35 | 35 |
| WD-RU-50A16T | 50A-1" | 60.33 | 52.5 | 25.4 | 22.23 | 113.8 | 35.8 | 47.31 |
| WD-RU-50A20T | 50A-(1-1/4") | 60.33 | 52.5 | 31.75 | 27.7 | 113.8 | 35.8 | 43.01 |
| WD-RU-50A24T | 50A-(1-1/2") | 60.33 | 52.5 | 38.1 | 33.75 | 103.8 | 35 | 35 |
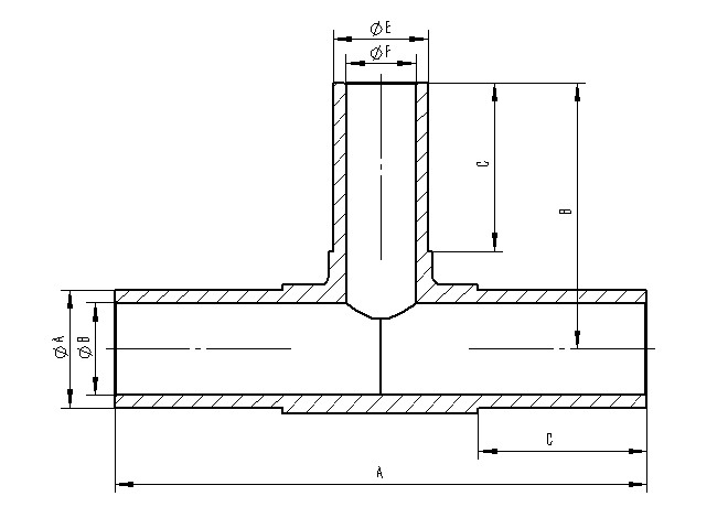
| Product Type | Pipe Type | ΦA(mm) | ΦB(mm) | A(mm) | B(mm) | C(mm) |
|---|---|---|---|---|---|---|
| WD-T-15A | 15A | 21.34 | 15.8 | 120 | 60 | 38 |
| WD-T-20A | 20A | 26.67 | 20.93 | 120 | 60 | 38 |
| WD-T-25A | 25A | 33.4 | 26.64 | 124 | 62 | 38 |
| WD-T-40A | 40A | 48.26 | 40.86 | 149 | 74.5 | 38 |
| WD-T-50A | 50A | 60.33 | 52.5 | 166 | 83 | 38 |
| Product Code | Pipe Type | ΦA(mm) | ΦB(mm) | ΦE(mm) | ΦF(mm) | A(mm) | B(mm) | C(mm) |
|---|---|---|---|---|---|---|---|---|
| WD-RT-20A15A20A | 20A-15A-20A | 26.67 | 20.93 | 21.34 | 15.8 | 120 | 60 | 38 |
| WD-RT-25A15A25A | 25A-15A-25A | 33.4 | 26.64 | 21.34 | 15.8 | 124 | 62 | 38 |
| WD-RT-25A20A25A | 25A-20A-25A | 33.4 | 26.64 | 26.67 | 20.93 | 124 | 62 | 38 |
| WD-RT-40A15A40A | 40A-15A-40A | 48.26 | 40.86 | 21.34 | 15.8 | 149 | 75 | 38 |
| WD-RT-40A20A40A | 40A-20A-40A | 48.26 | 40.86 | 26.67 | 20.93 | 149 | 75 | 38 |
| WD-RT-40A25A40A | 40A-25A-40A | 48.26 | 40.86 | 33.4 | 26.64 | 149 | 75 | 38 |
| WD-RT-50A15A50A | 50A-15A-50A | 60.33 | 52.5 | 21.34 | 15.8 | 166 | 84 | 38 |
| WD-RT-50A20A50A | 50A-20A-50A | 60.33 | 52.5 | 26.67 | 20.93 | 166 | 84 | 38 |
| WD-RT-50A25A50A | 50A-25A-50A | 60.33 | 52.5 | 33.4 | 26.64 | 166 | 84 | 38 |
| WD-RT-50A40A50A | 50A-40A-50A | 60.33 | 52.5 | 48.26 | 40.86 | 166 | 84 | 38 |
| Product Code | Pipe Type | ΦA(mm) | ΦB(mm) | ΦE(mm) | ΦF(mm) | A(mm) | B(mm) |
|---|---|---|---|---|---|---|---|
| WD-RE-40A25A | 40A-25A | 48.26 | 40.86 | 33.4 | 26.64 | 74.5 | 38 |
| WD-RE-50A25A | 50A-25A | 60.33 | 52.5 | 33.4 | 26.64 | 84 | 38 |
| Product Code | Pipe&Tube Type | ΦA(mm) | ΦB(mm) | A(mm) | B(mm) |
|---|---|---|---|---|---|
| WD-FD-E-15A8T | 15A-1/2" | 21.34 | 15.8 | 60 | 60 |
| WD-FD-E-15A12T | 15A-3/4" | 21.34 | 15.8 | 60 | 60 |
| WD-FD-E-20A12T | 20A-3/4" | 26.67 | 20.93 | 60 | 60 |
| WD-FD-E-20A16T | 20A-1" | 26.67 | 20.93 | 60 | 60 |
| WD-FD-E-25A12T | 25A-3/4" | 33.4 | 26.64 | 60 | 60 |
| WD-FD-E-25A16T | 25A-1" | 33.4 | 26.64 | 73.5 | 80 |
| WD-FD-E-25A20T | 25A-(1-1/4") | 33.4 | 26.64 | 74 | 94.5 |
| WD-FD-E-40A16T | 40A-(1") | 48.26 | 40.86 | 84 | 80 |
| WD-FD-E-40A20T | 40A-(1-1/4") | 48.26 | 40.86 | 94.5 | 94.5 |
| WD-FD-E-40A24T | 40A-(1-1/2") | 48.26 | 40.86 | 105.5 | 93 |
| WD-FD-E-50A20T | 50A-(1-1/4") | 60.33 | 52.5 | 94.5 | 94.5 |
| WD-FD-E-50A24T | 50A-(1-1/2") | 60.33 | 52.5 | 105.5 | 93 |
| Product Code | Pipe&Tube Code | A(mm) | B(mm) | ΦA(mm) | ΦB(mm) |
|---|---|---|---|---|---|
| WD-FD-U-15A4T | 15A-(1/4") | 80.29 | 43 | 21.34 | 15.8 |
| WD-FD-U-15A6T | 15A-(3/8") | 80.9 | 43 | 21.34 | 15.8 |
| WD-FD-U-15A8T | 15A-(1/2") | 84.9 | 43 | 21.34 | 15.8 |
| WD-FD-U-15A12T | 15A-(3/4") | 85.95 | 43 | 21.34 | 15.8 |
| WD-FD-U-15A16T | 15A-(1") | 96.65 | 43 | 21.34 | 15.8 |
| WD-FD-U-20A4T | 20A-(1/4") | 80.04 | 43 | 26.67 | 20.93 |
| WD-FD-U-20A6T | 20A-(3/8") | 80.9 | 43 | 26.67 | 20.93 |
| WD-FD-U-20A8T | 20A-(1/2") | 84.9 | 43 | 26.67 | 20.93 |
| WD-FD-U-20A12T | 20A-(3/4") | 85.95 | 43 | 26.67 | 20.93 |
| WD-FD-U-20A16T | 20A-(1") | 96.65 | 43 | 26.67 | 20.93 |
| WD-FD-U-25A4T | 25A-(1/4") | 80.04 | 43 | 33.4 | 26.64 |
| WD-FD-U-25A6T | 25A-(8/3") | 80.9 | 43 | 33.4 | 26.64 |
| WD-FD-U-25A8T | 25A-(1/2") | 84.9 | 43 | 33.4 | 26.64 |
| WD-FD-U-25A12T | 25A-(3/4") | 85.95 | 43 | 33.4 | 26.64 |
| WD-FD-U-25A16T | 25A-(1") | 96.65 | 43 | 33.4 | 26.64 |
| WD-FD-U-25A20T | 25A-(1-1/4") | 101.84 | 43.8 | 33.4 | 26.64 |
| WD-FD-U-25A24T | 25A-(1-1/2") | 105.3 | 44 | 33.4 | 26.64 |
| WD-FD-U-40A16T | 40A-(1") | 112.85 | 59.2 | 48.26 | 40.86 |
| WD-FD-U-40A20T | 40A-(1-1/4") | 114.84 | 56.8 | 48.26 | 40.86 |
| WD-FD-U-40A24T | 40A-(1-1/2") | 113.8 | 57 | 48.26 | 40.86 |
| WD-FD-U-50A20T | 50A-(1-1/4") | 115.04 | 57 | 60.33 | 52.5 |
| WD-FD-U-50A24T | 50A-(1-1/2") | 118.3 | 56 | 60.33 | 52.5 |
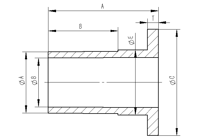
| Product Code | Pipe Type | ΦA(mm) | ΦB(mm) | ΦC(mm) | ΦE(mm) | A(mm) | B(mm) | T(mm) |
|---|---|---|---|---|---|---|---|---|
| WD-FL-U-15A | 15A | 21.34 | 15.8 | 39 | 23.34 | 60 | 38 | 6 |
| WD-FL-U-20A | 20A | 26.67 | 20.93 | 49 | 28.67 | 60 | 38 | 6 |
| WD-FL-U-25A | 25A | 33.4 | 26.64 | 58 | 35.4 | 60 | 38 | 6 |
| WD-FL-U-40A | 40A | 48.26 | 40.86 | 78 | 50.26 | 60 | 38 | 7 |
| WD-FL-U-50A | 50A | 60.33 | 52.5 | 88 | 31.5 | 60 | 38 | 7 |
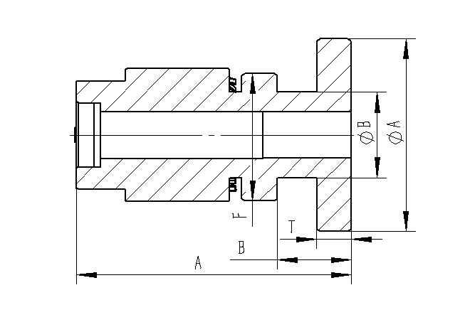
| Product Code | Pipe&Tube Type | A(mm) | B(mm) | T(mm) | F(mm) | ΦA(mm) | ΦB(mm) |
|---|---|---|---|---|---|---|---|
| FL-FD-15A8T | 15A-(1/2") | 55.75 | 15 | 7 | 26.67 | 39 | 17.3 |
| FL-FD-20A12T | 20A-(3/4") | 56.55 | 15 | 7 | 33.6 | 54 | 23.9 |
| FL-FD-25A16T | 25A-(1") | 69.21 | 17 | 7 | 46.41 | 64 | 34.2 |
| FL-FD-25A16T-L | 25A-(1") | 79.1 | 27 | 7 | 46.41 | 64 | 34.2 |
| FL-FD-35A20T | 35A-(1-1/4") | 76.79 | 17 | 7 | 52.07 | 70 | 39 |
| FL-FD-35A20T-L | 35A-(1-1/4") | 88.6 | 29 | 9 | 52.07 | 81 | 39 |
| FL-FD-40A24T | 40A-(1-1/2") | 80.71 | 18.4 | 7 | 58.9 | 78 | 43.6 |
| FL-FD-40A24T-L | 40A-(1-1/2") | 92.5 | 30 | 9 | 58.9 | 78 | 43.6 |
| FL-FD-50A24T | 50A-(1-1/2") | 92.5 | 30 | 9 | 58.9 | 93 | 43.6 |
| Product Code | Pipe&Tube Type | A(mm) | B(mm) | C(mm) | ΦA(mm) | ΦB(mm) |
|---|---|---|---|---|---|---|
| WD-FT-T-25A4T25A | 25A-(1/4")-25A | 124 | 48 | 38 | 33.4 | 26.64 |
| WD-FT-T-25A6T25A | 25A-(3/8")-25A | 124 | 57 | 38 | 33.4 | 26.64 |
| WD-FT-T-25A8T25A | 25A-(1/2")-25A | 124 | 55.5 | 38 | 33.4 | 26.64 |
| WD-FT-T-25A12T25A | 25A-(3/4")-25A | 124 | 61.5 | 38 | 33.4 | 26.64 |
| WD-FT-T-25A16T25A | 25A-(1")-25A | 124 | 68.5 | 38 | 33.4 | 26.64 |